|
|
 |
|
 |
|
UCHWAŁY RADY MIEJSKIEJ W BEŁCHATOWIE
- Numer sesji Rady Miejskiej: XX
- Data: 26-01-2012
- Numer uchwały: Uchwała nr XX/146/12
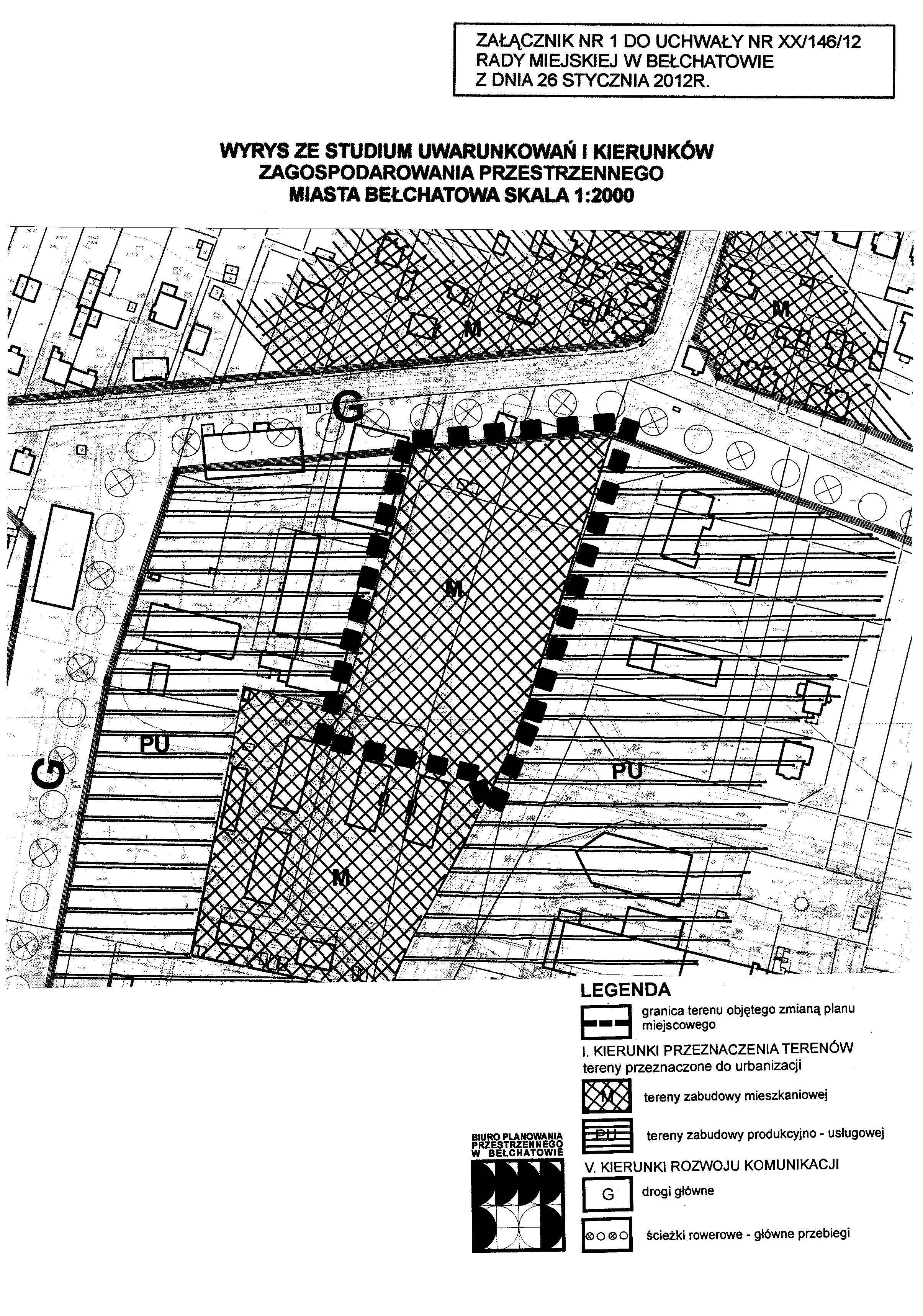
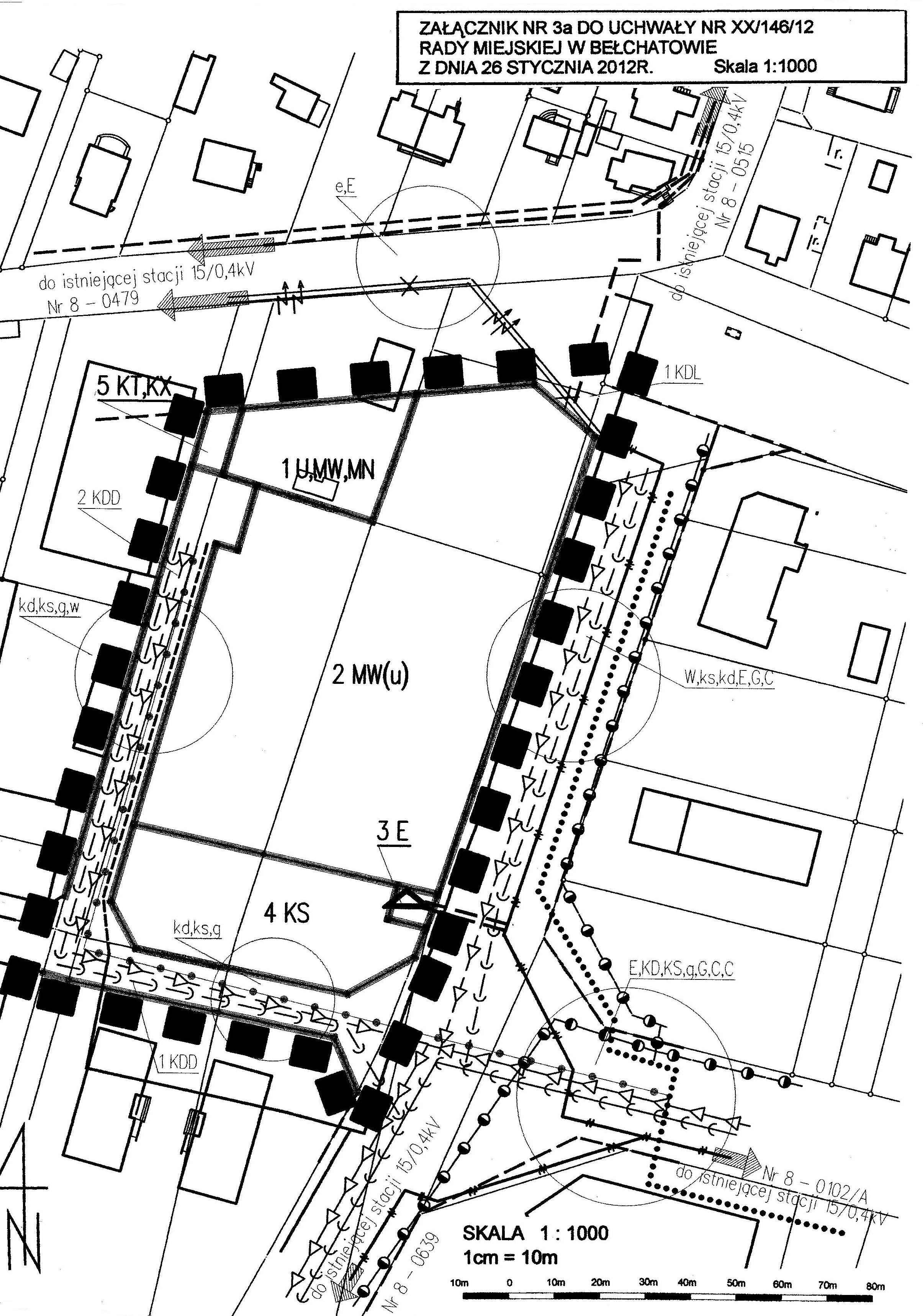
- Tytuł uchwały: w sprawie zatwierdzenia zmiany fragmentu miejscowego planu zagospodarowania przestrzennego obszaru ograniczonego wschodnią granicą działki nr 13 obręb 11, granicami miasta i ulicami: Olsztyńską, ks. Popiełuszki, Czyżewskiego wschodnimi granicami działek 80/1 i 79 obr. 11, północną granicą rowu melioracyjnego, wschodnią granicą działki nr 78/6 obr. 11 oraz drogą biegnącą fragmentem działki nr 75/6 i jej przedłużeniem w kierunku zachodnim.
Pobierz treść uchwały |
| |
|
|
|
 |
|
 |
Pokaż rejestr zmian
| REJESTR ZMIAN |
| Nazwa dokumentu: |
Uchwała nr XX/146/12 Rady Miejskiej w Bełchatowie z dnia 26 stycznia 2012 r. w sprawie zatwierdzenia zmiany fragmentu miejscowego planu zagospodarowania przestrzennego obszaru ograniczonego wschodnią granicą działki nr 13 obręb 11, granicami miasta i ulicami: Olsztyńską, ks. Popiełuszki, Czyżewskiego wschodnimi granicami działek 80/1 i 79 obr. 11, północną granicą rowu melioracyjnego, wschodnią granicą działki nr 78/6 obr. 11 oraz drogą biegnącą fragmentem działki nr 75/6 i jej przedłużeniem w kierunku zachodnim. |
| Wprowadził do BIP: |
Teresa Milczarek |
| Data udostępnienia w BIP: |
2012-01-30 |
| Wytworzył informację: |
Teresa Milczarek |
| Ostatnio modyfikował: |
Teresa Milczarek |
| Data modyfikacji: |
2013-04-12 10:48:54 |
|
|
|
|